Cuando hacer un plano 2d ahorra mucho trabajo posterior.
Estuve viendo una casa con grandes posibilidades de reforma, nos reunimos con el dueño en la propiedad y juntos analizamos todas las posibilidades que tenía, fue ahí que pensamos que la mejor forma de explicarlo a las personas que estarían involucradas en el proceso era contratando un render 3d fotorrealista, donde pudiéramos mostrar en detalle, tanto al arquitecto, constructor o incluso la inmobiliaria, cual es el trabajo final que queríamos lograr en la casa. Claro que esto era muy difícil de realizar sin tener una base de trabajo antes de invertir el tiempo que lleva el renderizado. Fue por esto que lo primero que pensé fue como organizar mi lista de tareas a realizar en la propiedad. El primer paso, coordinar una visita a la propiedad. Si bien esto no sería necesario en caso de tener un proyecto con especificaciones técnicas, de terminaciones, medidas etc. en este caso no lo teníamos así que hubo que hacer todo desde el inicio. Estaba ubicada en las afueras de Madrid, analizamos las posibilidades con el propietario, empezamos a intercambiar ideas de que es lo que a el le gustaría de su propiedad para poder imaginar una obra que se adapte a su gusto. Fue entonces que dimos el segundo paso. Levantar un plano de planta. Con el plano en 2d, pudimos visualizar si las ideas tenían posibilidades de ejecución, si las medidas cuadraban. Teniendo esto empezamos a ver cuales eran las mejores posibilidades tratando de aprovechar lo que había construido en la propiedad para evitar excedernos en el presupuesto de la reforma. El primer plano que se hace es con lo existente, un par de días después de pensar un poco la conversación salió una primer idea, entre ambos fuimos dándole vueltas para que luego de 3 modificaciones llegamos a la cuarta y definitiva.
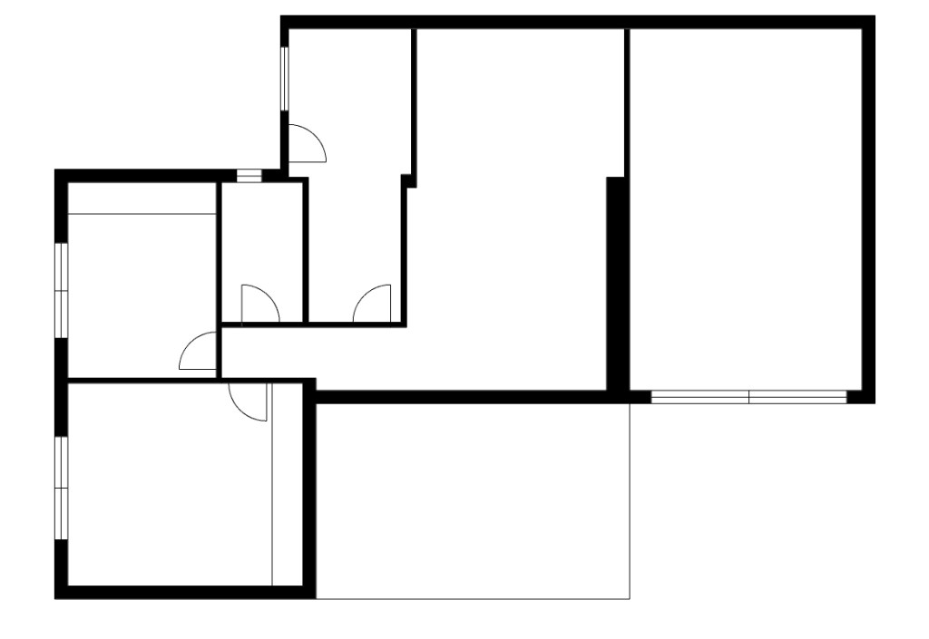
Este fue el plano sobre lo existente que hice en la propiedad:

Finalizado esto y pasadas varias modificaciones llegamos a este plano de planta:

Con este plano de planta fue suficiente para empezar a diseñar el render en 3d, claro que luego debía revisar el arquitecto que hace el proyecto y lo presenta en el ayuntamiento la factibilidad real de ejecución, ya que mi trabajo no es técnico, solo es grafico. Pero ayuda mucho para explicarle a los profesionales que intervienen cual es la idea que uno tiene para que ellos busquen la forma técnica de ejecutarla.
Lo mismo hicimos con la fachada y los interiores, con soporte del renderizado pudimos lograr imágenes que nos ayuden lo suficiente para lograr explicar a los profesionales intervinientes, sean arquitectos, inmobiliarias, o constructores, cual es el resultado final que queríamos lograr. Por eso, a partir de lo que se veía y media a simple vista fuimos dando forma a una reforma que nos parecía que cumplía con las necesidades del propietario.
Esta es la casa al momento de escribir este blog.

Luego de probar colores, diseños y formatos, con la idea de modernizar la propiedad sin hacer una intervención profunda en la estructura de la casa, llegamos a este diseño.


Vale aclarar que esto no es un dibujo, ni una foto suelta de la propiedad, el desarrollo es completo, para lograr estas imágenes he desarrollado toda la propiedad, desde la sala hasta el trastero. Un trabajo de aproximadamente 5 días, con conversaciones permanentes con el propietario consultando todo tipo de detalles de terminaciones y verificando en cada paso que materiales y formato tendría desde el tirador de un armario hasta el suelo del vestidor.
Aquí dejo un video resumido del render de la casa finalizado.
Pero en conclusión es importante cumplir con todos los pasos previos para llegar a un buen objetivo, el plano de planta es fundamental para llegar a un buen resultado final.
Cuanto vale hacer un plano 2d acotado de planta en Madrid?
Para un piso de menos de 50 m2 se cobra 30€+IVA al momento de escribir este blog. en la medida que son más m2 el valor va subiendo. Puedes verificar el precio del tuyo en nuestra lista de valores.
Cuanto tardo en hacer el plano?
Habitualmente desde que me llaman se coordina la visita a no mas de 48hs y se hace en 24hs más.
Me conviene con o sin acotaciones?
Plano2d dde de 50€+IVA. La mayoría de las inmobiliarias contratan planos sin acotaciones, para no limitar publico interesado y poder mostrar la distribución de la propiedad, luego les hago otra copia con las acotaciones para quien lo pide de esta manera específicamente.
Posisiona mejor mi anuncio ponerle plano 2d?
Si, ya hace tiempo es sabido que cuanto más detalle tiene una propiedad en idealista, este lo ubica entre las primeras posiciones del mismo nivel de pago, es decir una propiedad con foto video y plano de una viso gratuito saldrá en posición anterior que otra del mismo tipo de anuncio que no tenga alguna de estas cosas.
Puedo contratar solo el plano?
Puedes contactarme en mi oficina de Madrid, estoy en Nuevos Ministerios, Madrid Centro, me acerco a su propiedad incluso si solo necesita un plano sin fotos y video.
