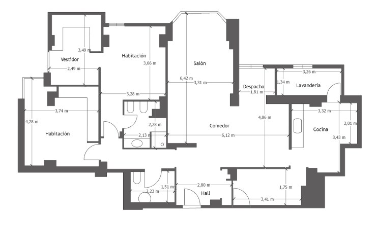
Son pocas las personas que lo valoran al pensar en poner en venta una propiedad, pero los clientes le dan una gran importancia, la ventaja de saber las medidas de una sala para ver si entran nuestros muebles antes de coordinar una visita suele ser muy interesante a la hora de pensar en ahorrar tiempos de muestra. También lo es para saber si la distibución esta dentro de lo que nos gusta, podemos ver muy lindas fotos, pero si la planta no esta distribuida como pensábamos probablemente tampoco nos sirva.


